設計師:徐靜(鼓樓旗艦店 高級設計師)
戶型詳情:錦繡濱江花園140平米 現代簡約風格
案例說明
人人都說家是心靈的港灣,在家可以盡情放松,可以為所欲為,家更是能體現出主人的品味和生活品質。本案為三室兩廳兩衛一廚的住宅,環境優美,設計突出溫馨且不失時尚之感。以簡潔明快的設計風格為主調,女主人是一個生活有品質的小資女性,喜歡一切有調調的東西。基礎裝飾以后現代為主,加上一些混搭的簡歐裝飾,融合成了一個溫馨、健康的現代家庭環境。環境室內設計區別于簡單的裝飾設計就在于環境藝術設計是從全局出發,而不僅僅著眼某一點或某一個墻面的裝飾,利求達到統一中帶有變化,和諧中產生對比的要求。后期配飾添加了一些金屬感的小裝飾,讓空間更加生動活潑。
優缺點分析
優點:
客廳與餐廳連貫一線,中間相連著玄關,大大加強了視覺空間感。
臥室講究安靜、舒適、私密,主臥位置合理,尺寸合適,能夠保證足夠安靜。
衛生間位置合理,使用起來動線比較合理。
廚房、餐廳獨立分布,開敞方便使用、油煙的排出。
缺點:
大陽臺太長,房間動靜分區不合理,沒有干濕分區。
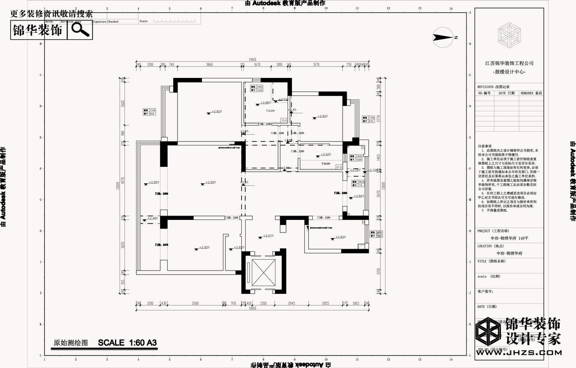
原始結構圖↓
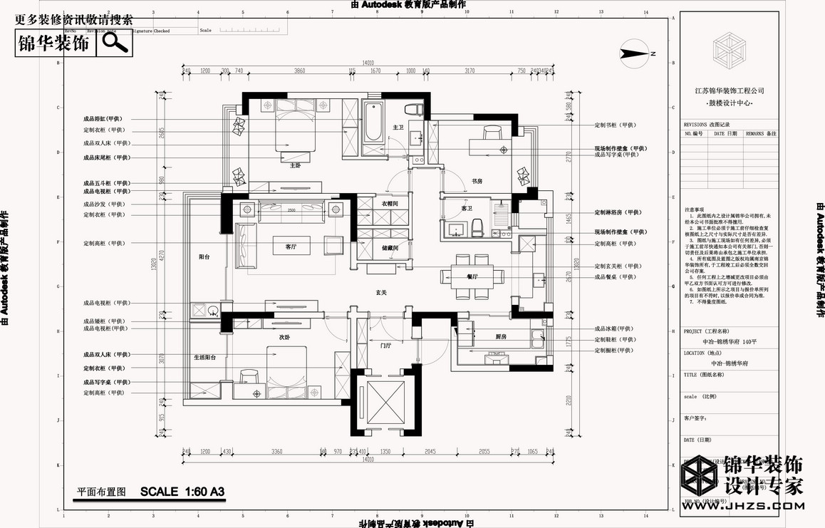
平面布置圖↓
鳥瞰圖↓
俯視圖↓
客戶效果圖↓
客戶效果圖↓
客戶效果圖↓
想了解更多錦繡濱江花園戶型資料么?
錦華裝飾準備了錦繡濱江花園各戶型全套設計方案、工程量報價、參考效果圖、主材搭配方案.歡迎您和網絡客服取得聯系,預約來店面詳細溝通.錦華裝飾,設計專家!.
江蘇家裝示范品牌
代表地區優秀設計聲音
集28年工程管理經驗之大成
省時、省力更省心
| 走進錦華 | 設計團隊 | 作品列表 | 戶型解析 | 裝修百科 |
關注錦華公眾號
|
瀏覽手機官網 |
全國熱線 025 86550815 |
||||||||||
| 新聞列表 | 錦華文化 | 堂杰國際設計 | 1865旗艦店 | 極簡 | 中古 | 秦淮金茂府 | 常見問題 | ||||||||||
| 全國分公司 | 錦華招聘 | 河西旗艦店 | 鼓北旗艦店 | 法式 | |||||||||||||
| 錦華簡介 | 聯系我們 | 城東旗艦店 | 江寧旗艦店 | 歐式古典 | 北歐 | 中交錦方 | |||||||||||
| 資質榮譽 | 法律聲明 | 江北旗艦店 | 江浦店 | 美式田園 | 新古典 | 溧水玖宸府 | |||||||||||